Stationsgatan 14
HYRESLEDIGT fr.o.m 2024-11-01
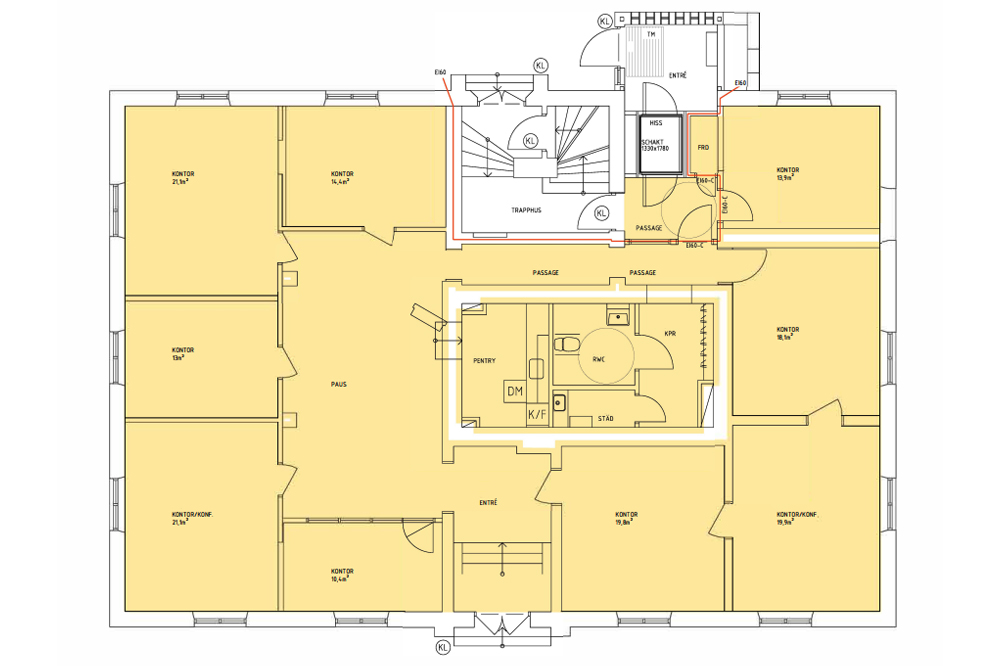
Välkommen till en ljus och välplanerad kontorslokal på 312 kvm, strategiskt belägen i hjärtat av Kumla.
Här har ni direkt närhet till både tåg- och busstation, samt stadens utbud av butiker och restauranger – en idealisk plats för både medarbetare och besökare.
Fastigheten är nyrenoverad och erbjuder ett flexibelt kontor i markplan. I lokalens ”hjärta” hittar ni ett rymligt pausrum som även kan användas som matplats eller mötesrum, med ett modernt pentry i direkt anslutning.
Runt detta centrala utrymme finns nio ljusa kontorsrum i varierande storlekar, som enkelt kan anpassas efter era behov.
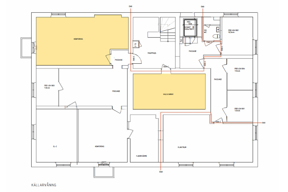
För större sammankomster finns ett väl tilltaget konferensrum i källarplanet, tillsammans med ett arkivrum.
Fastigheten är försedd med hiss, och på gården finns tio parkeringsplatser som ger enkel åtkomst. Värme ingår i hyran och viss möblering kan erbjudas.
Upptäck en arbetsplats där modern funktion möter Kumlas bästa läge!




























